仙台市若林区上飯田2丁目
建築条件付き宅地



| 建築条件付き土地 | |
|---|---|
| 価格 | 10,000,000円 |
| 所在地 | 仙台市若林区上飯田2丁目 |
| 交通 | 仙台市営バス「上飯田3丁目」バス停 徒歩2分 |
| 土地面積 | 95.39㎡ 28.85坪 |
| 権利 | 所有権 |
| 都市計画 | 市街化区域 |
| 用途地域 | 第一種低層住居専用地域 |
| 地目 | 宅地 |
| 建ぺい率 | 50% |
| 容積率 | 80% |
| 接道状況 | 公道 北側約6m |
| 取引形態 | 売主 |
| 情報公開日 | 2025/10/1 |
| 次回更新予定日 | 2026/1/1 |
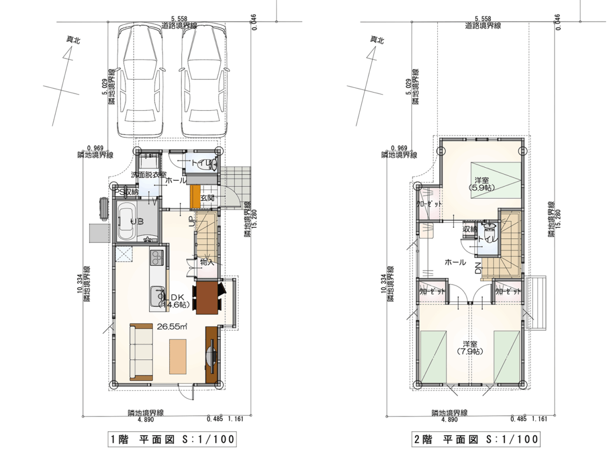
参考プラン
※プランはあくまでイメージです。
※お問い合わせ時に、既に商談中になっている場合もございます。ご興味がございましたらお早めにお問い合わせください。


